STORY
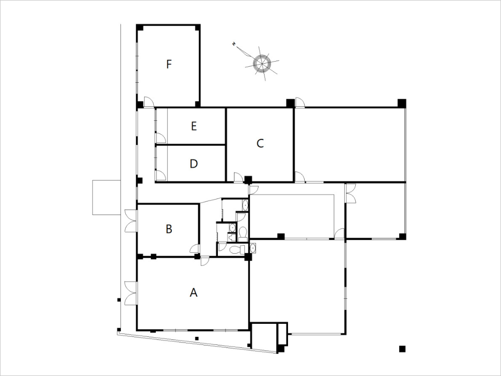
もともと1つのテナントがワンフロア利用していた約85坪の1階スペースを、区割りして複数のテナント区画にしたいとオーナーよりお声がけをいただき、プロジェクトがスタート。市場調査等の結果、オフィス・店舗の複合用途テナントスペース(6区画)へリノベーションすることになりました。
スモールオフィスやサロン用途を想定した区画は内装仕上げ工事まで行い、店舗を想定した区画は下地状態でのお引渡しとしました。
建物の目の前の桜並木を臨む、心地よい路面区画。西鉄の新駅「桜並木駅」開業(2024年3月)と同時に、グレースガーデンの1階もお披露目。建物1階をまちにひらく、新しいあゆみのスタートとなりました。
| 建物名 | グレースガーデン |
|---|---|
| 所在地 | 福岡市博多区 |
| 築年 | 2006年2月 |
| 竣工 | 2024年 |
| 施工面積 | – |
リノベーション工事に関するお問い合わせは
スペースRデザインでは、リノベーション工事に関するお問い合わせを承ります。
株式会社 スペースRデザイン(リノベーション工事担当)
〒810-0041
福岡市中央区大名2-8-18 天神パークビル
Tel 092-720-2122 / Fax 092-720-2123










